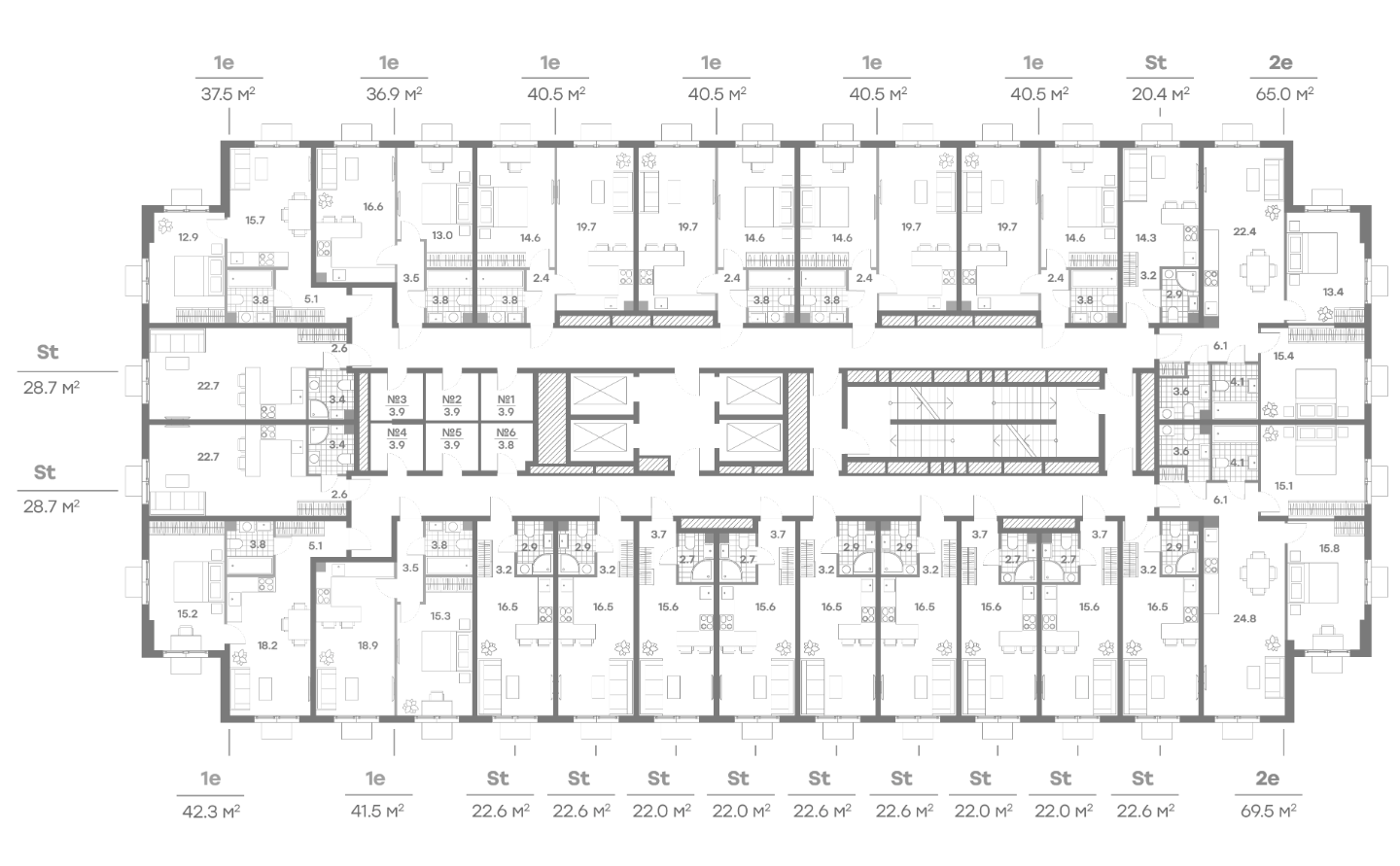
2-к квартира 37.5 м2 ЖК "ПаркСайд"
Современные квартиры в новых жилых комплексах
Жилой комплекс, разделен­ный на 2 очереди строительства, состоит из 8 корпусов. Архитектурную концепцию разработало бюро «СПИЧ». Облицовка фасадов выпол­нена клинкерной плиткой со вставками из алюминиевых композитных панелей. Первые этажи корпусов продолжают внешний облик башен — для их отделки используется клинкерная плитка в цвет каждого фасада. В комплексе создана безбарьерная среда — входы в корпуса расположены на уровне земли. В каждом корпусе предусмотрены консьерж и удобные колясочные комнаты. Для хранения вещей и спортив­ного инвентаря предусмотрены кладовые помещения, которые находятся на каждом этаже.

В комплексе предложен широкий выбор планировочных решений: от студий до 3-комнатных квартир европейского формата. Можно подобрать квартиру без отделки, с современной дизайнерской отделкой или полностью укомплектованную мебелью и техникой.

Территория комплекса огорожена и поделена на зоны активного и спокойного отдыха. Для занятий спортом предусмотрены различные тренажеры и комбинации для фитнеса. На детских площадках установлено современное игровое оборудование. Во 2-й очереди запроектирован собственный яблоневый сад площадью более 550 кв. метров, где будут высажены яблони разных сортов. Концепция сада получит развитие и на стилобатах между корпусами, что создаст уникальную обстановку за счет дополнительной площади. В стилобатной части запроекти­рованы сквозные пешеходные арки, которые соединяют дворовое пространство и территорию «Битцевского леса». Особое место в концепции благоустройства занимает арт-объект — впечатляющий шар из нержавеющей стали, выполнен­ный чешским архитектором Яном Бочаном в стиле конструктивизма.

Жилой комплекс расположен в районе Центральное Чертаново на улице Красного Маяка. В шаговой доступности есть спортивные центры, продукто­вые магазины, образовательные учреждения, парки для прогулок и отдыха. В непосредственной близости располагается Битцевский лес, отдельный выход в который доступен жителям комплекса. Ближайшее метро «Улица Академика Янгеля» в 10 минутах транспортом.

Ссылка на объявление: https://новостройки.site/buildings/53218
19 884 732
Липатникова Алина Александровна


Москва, Чертаново Центральное район, улица Красного Маяка, д 26, к1 СТР 1
Битцевский парк1.6 кмПражская1.6 кмНовоясеневская1.7 км
redeemДанный объект можно приобрести в ипотеку

Информация об объекте

Количество комнат2-к квартира Этаж23 Площадь общая37.5 Площадь жилая37.5 Площадь кухни15.7 Площадь комнат12.9 Балконов3 Совмещенных санузлов1 ОкнаДвор + улица ОтделкаЧистовая

Информация о доме

Название ЖКЖК "ПаркСайд" ЗастройщикЛСР. Москва Корпус1 стр 1 Год сдачи2026 КварталI Тип домаКирпичный Этажей в доме23 Грузовых лифтов2 Пассажирских лифтов1 Высота потолков2.7 ПарковкаПодземная

Цена и условия сделки

Тип продажиПредварительный договор купли-продажи