2 комнатная квартира в ЖК"Дивные дали"
Современные квартиры в новых жилых комплексах
ЖК «Дивные Дали» от ГК «Спецстрой» расположен в Октябрьском районе, на территории свежего воздуха, чистого неба и бескрайних пейзажных просторов. Близость Озера-парка «Октябрьский» позволит устраивать неспешные прогулки со всей семьей а также активно заниматься спортом, поддерживать здоровый образ жизни.

Преимущества ЖК Дивные Дали:

Близость к природе, территория свежего воздуха;
Близость Озера-парка «Октябрьский»;
Надежные монолитно-кирпичные дома в едином архитектурном стиле;
Разнообразные по формату квартиры и современные планировочные решения;
Улучшенное благоустройство двора. Детская площадка с многофункциональным детским городком.
Ссылка на объявление: https://новостройки.site/buildings/53498
6 504 750
Александр Васильев


Красноярский край, Красноярск, Октябрьский район, улица Норильская, д 58
redeemДанный объект можно приобрести в ипотеку

Информация об объекте

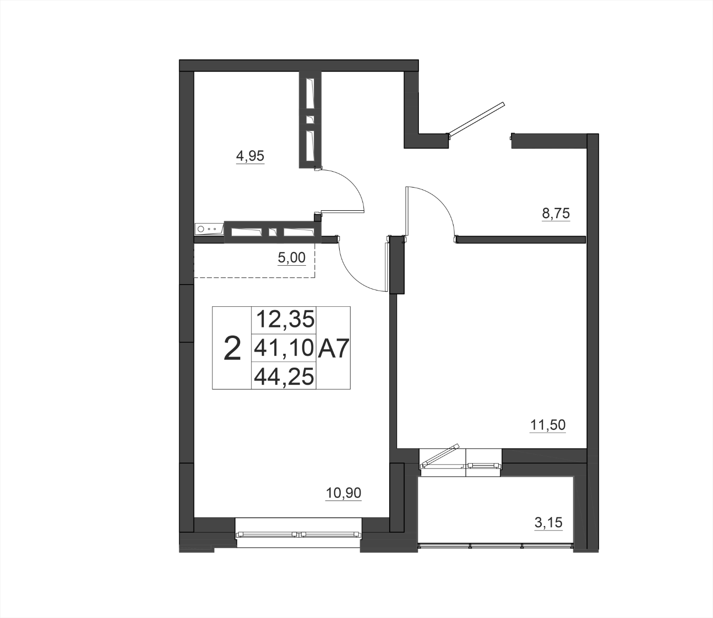
Количество комнат2-к квартира Этаж14 Площадь общая44.25 Площадь жилая44.25 Лоджий1 Совмещенных санузлов1 ОкнаДвор + улица ОтделкаПредчистовая

Информация о доме

Название ЖКЖК «Дивные дали» Год сдачи2025 КварталIV Тип домаКирпичный Этажей в доме17 Грузовых лифтов1 Пассажирских лифтов2 МусоропроводЕсть ПарковкаНаземная

Цена и условия сделки

Тип продажиДоговор долевого участия (214-ФЗ)